
矿用脱水筛产品介绍:
矿用脱水筛一种应用于煤炭行业选煤厂的高效细粒煤脱水的煤泥离析脱水筛,用于选煤、选矿、等部门中、细粒度干式、湿式筛分、脱水、脱介、脱泥等,脱水振动筛运动轨迹为直线,是根据JB2444-86《ZSM型煤用座式双轴振动筛》标准生产的,全系列共有十六种规格,可供选煤、选矿、发电、制糖、制盐等工业部门,对中细粒度物料进行干湿式筛分、脱水、脱介、脱泥。

矿用脱水筛工作原理:
矿用脱水筛采用座式激振器或法兰式激振器,由两台电机外拖动作反方向同自同步旋转,采用双电机驱动自同步技术,激振器通过绕性联轴器拖动,两组激振器作同步反向旋转时,其偏心块所产生的激振力在平行于电机轴线的方向相互抵消,在垂直于电机轴的方向叠为一合力,从而形成单一的沿振动方向的激振力,其两轴相对于筛面有一倾角,在激振力作用下使筛箱做往复直线运动,物料在筛面上被抛起跳跃向前作直线运动,同时V型设计的筛面结构更佳的实现脱水效果。
矿用脱水筛特点:
矿用脱水筛通过激振力改变了矿浆表面的水张力,浆水透过筛网成为筛下物,而微细物料被筛网阻隔形成滤层受振动力影响向前运动排出。
1.物料适应性广:回转筛广泛应用于各类物料筛分,无论是劣质煤、煤泥,还是煤烟以及其它类物料,都能够顺利进行筛分;
2.进料方式简单多样:回转筛进料口可根据现场实际设计,无论是皮带、漏斗或其它进料方式,不用采取特殊措施,都可以顺畅进料;3.筛分效率高:设备可设有梳型清筛机构,在筛分过程中,不管进入筛分筒的物料多脏、多杂都可以筛分,从而提高了设备的筛分效率;
4.筛分量大、易于大型化:在相同尺寸下,圆面积比其它型状的面积都大,因此其筛分有效面积就大,使物料能充分接触筛网,因而单位时间内筛分量就大。又因其结构简单,布置方便,技术新颖而成熟等特点,极易大型化;5.自身能耗小: 回转筛电机功率小,是其它筛型的二分之一到三分之一,处理相同量物料而运行时间仅为其它筛型的二分之一,因此能耗低;
6.工作环境好:整个筛分筒可以用密封隔离罩所密封,彻底清除了筛分循环过程中的粉尘飞扬,块状分溅等现象,避免了对工作环境的污染;
7.设备噪音低:回转筛在运行中,由于回转速度小,并且有密封隔离罩与外界隔离,使噪声无法传递到外部,从而降低了设备噪音;

矿用脱水筛结构:
矿用脱水筛主要由:支撑装置(底座和减振装置)、筛箱、振动电机组成。
1、支撑装置:筛体由四个支承装置支撑,每个支撑装置由橡胶弹簧、固定筛体卡、弹簧导向座、弹簧支座等组成。橡胶弹簧是减振装置中不可缺少的元件,减少筛体对地基的动负荷。
2、筛箱:筛箱由筛框、筛板及压紧装置组成。
3、筛框:由高强度钢板与加强角钢组成的侧板、钢管、角钢、槽钢等焊接而成,内侧焊有支撑筛板的托架。
4、筛板:单层筛的筛板使用不锈钢条缝焊接网筛板,条缝宽度为0.3mm、0.5mm、0.6mm不等,可按客户脱水要求选择;双层筛的下层筛板与单层筛相同,上层筛板一般采用不锈钢编织网,也可采用不锈钢条缝焊接网。
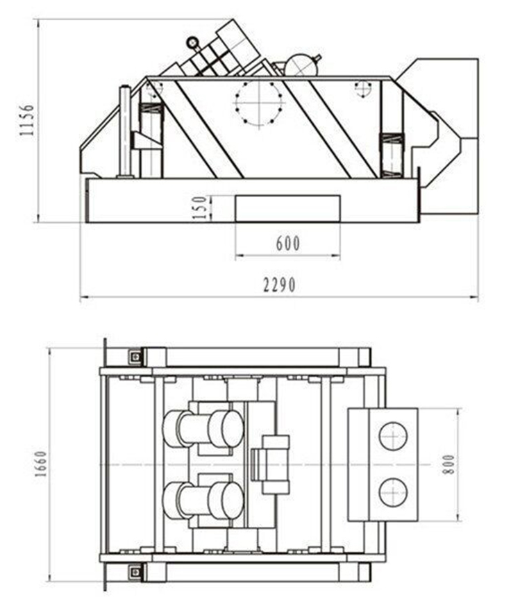
矿用脱水筛外形结构图:


矿用脱水筛试运行:
在运转前应做一些必要的检查,保证振动电机转动灵活。振动电机与控制箱的接线要正确,即两台(相同功率、转速)振动电机必须相反方向转动(且同步相对旋转),而不能相同方向转动。
(1)、试运转时,消除筛箱与溜槽和排料口的碰撞现象。
(2)、试运转不少于2小时在此时间内,应细致观察和检查,筛机启动后应工作平稳,振幅稳定。
(3)、筛机运转时,筛箱不得产生横向摆动。若产生此现象,其原因是四个支撑座的高差不一致或筛机制造过程中支撑部分焊接不标准造成。
(4)、试机2小时内,振动电机温度逐渐升高,然后保持稳定,最高温度不高于75℃。
(5)、如试机后,在短时间内,振动电机发出不正常噪音及温度急剧上升或冒烟应立即停机,检查电机、轴承、偏心块等零件情况并处理。如筛板发出噪音,应检查筛板压紧装置情况并压紧,排出故障后重新启动筛机。
(6)、检查电器控制设备情况,确保控制设备运行正常。
(7)、经历四小时的空机试运转之后,应对筛机安装工作进行验收,发现问题及时处理。
脱水振动筛使用维修:
1、操作人员应熟悉筛机性能,在开始工作之前应详细阅读筛机说明书及值班记录,并进行设备的总检查,如振动电机的链接螺旋松紧,筛板的压紧情况等。
2、启动:筛机的启动应遵循工艺系统顺序,尽可能确保空负荷启动。为确保两台振动电机同步相对旋转,启动时应先点动后再正常启动。
3、每班中间和终了时应检查振动电机负荷和筛机的工作情况。
4、停机:筛机停机应符合工艺系统顺序。出特殊事故外,禁止带料停机和停机后继续向筛机给料。
5、激振力大小不符合要求时,只需调节振动电机偏心块夹角(为方便调节『师大振动』每台振动电机偏心块上均做有调节标识),振动电机激振力可无级调整。夹角越大,激振力越小;反之则越大。夹角为零时激振力最大,180o时激振力为零。
6、筛机的维修:筛机的检修应定期由专职人员进行。
7、橡胶弹簧温度不得超过70℃。
8、振动电机的维修和调整:按YZDP系列或YZU/JZO系列三相异步振动电机使用说明书要求进行。
振动筛厂家家友情提示:请通过正规渠道购买振动筛配件,以保障您的合法权益!振动筛厂家请选河南奥创机械:www.wdlybc.com/zxky/ 24小时服务热线:18937310551
物料直线运行方形筛专家-奥创机械 网站备案:豫ICP备16037295号-13