产品介绍
      砂石概率筛分机介绍
鹏威机械生产的
砂石概率筛-砂石料筛分处理大产量振动筛分机在机制砂,石英砂,天然砂等物料行业筛分单台处理能力可以达到80t每小时。筛网寿命是其他筛子的两倍。概率筛是我公司新型研发的一款高效的振动筛分机,是一种主要针对河卵石,石灰石,花岗石,矿砂,河沙,天然砂,机制砂等砂浆行业中砂石分级的一款筛分机,具有产量大,筛分精度高,筛网使用寿命长,费用低等特点。

砂石概率筛分机工作原理
概率筛是一种新型高效的筛分设备,其筛箱运行轨迹为直线。该系列筛机系概率理论与工程实际有机结合的成功典范,其全新的设计理念和独特的结构及筛分原理成就了概率筛几近好的筛分效果。通过概率筛对机制砂或天然砂进行多级分级,筛选的目数:5mm~2.36mm~1.2mm~0.6mm,部分特殊砂浆已经筛分到0.3mm~0.15mm~0.075mm。
筛分物料
机制砂类:石灰石,钾长石,方解石,白云石,珍珠岩,花岗岩,河卵石,重晶石,玄武岩,沸石等。天然砂类:河砂,海砂,江砂,铸造砂,石英砂,尾矿砂等。
	 
	 
砂石概率筛分机特点
1、外观结构:封闭型多层设计,高可以设计到五层;
2、高效:振动概率筛在机制砂、天然砂的粗砂段筛分上是普通筛机产量的3~6倍,单台单时产量可以达到80吨以上,解决了原来很多设备布局在生产线上的困境。
3、筛网结构:筛网的筛面设计是弧形状态,外置的棘轮涨紧可以很轻松的控制筛面绷紧不松动,筛网使用时间可以达到60天。
4、操作简单:设备的后端和前方出料口全部是可撤卸设计,可以快速的从前后现场方便的任意一方更换您需要更换的每一层筛网。
5、环保:设备上盖设计有除尘装置,可以很方便的衔接现场除尘设备。
	6、维修:设备的维护有三点:第一,振动电机定期加油维护;第二,产品的所有紧固螺栓要定期紧固确保不发生松动共振;第三,定期观察筛网的磨损状态,及时更换筛网。
	 
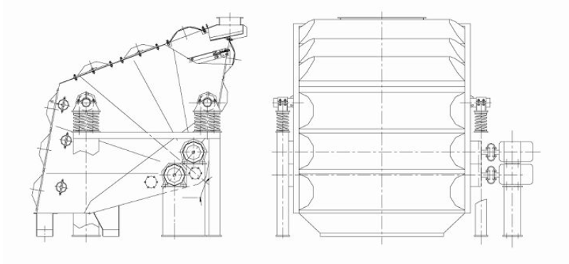
	砂石概率筛分机结构图纸:
概率筛的筛面均作直线振动,故与普通振动筛一样,可采用双轴惯性激振器,用两台电动机分别带动。对于体积小、重量轻的概率筛,可作用一对振动电机直接装在筛箱上激振,两激振电动机自同步运转,产生直线振动。由于筛箱和激振器之间的联接方式不同,故有两种不同激振系统的激振器:一种是激振器直接固接在筛条止,像普通直线振动筛,这种概率筛是线性振动系统。另一种是激振器安装在平衡架上,平衡架与筛箱之间是弹性联接,筛箱用弹簧吊挂,这种概率筛是双质量振动系统。概率筛基本上都采用带有弹簧的悬吊装置,重量轻的小筛分机用圆柱螺旋弹簧直接中吊挂装置进行调节。根据厂房条件和配置的需要,概率筛也可安装成座式,和直线振动筛一样,筛箱通过一组弹簧支承在机座上。
	 
	砂石概率筛分机型号参数表:
	 
	振动筛厂家家友情提示:请通过正规渠道购买振动筛配件,以保障您的合法权益!振动筛厂家请选河南奥创机械:http://www.wdlybc.com/jxzxs/832.html  24小时服务热线:18937310551